之前我们简单的聊到了铝合金化学转转化膜的接触电阻要求,那它是怎么测到的呢?本周将参考MIL-DTL-5541F和MIL-DTL-81706B对铝合金化学转化膜的接触电阻测试过程进行简单的介绍,希望对您有所帮助。
01铝合金阳极氧化的划分

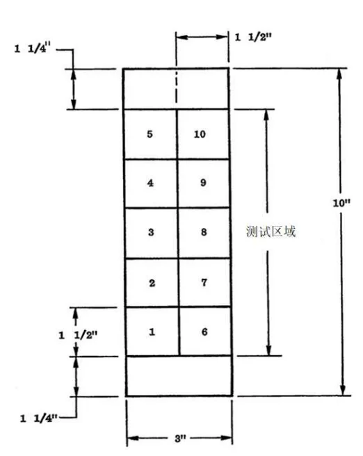
测试前共需准备10片试样(3英寸宽、10英寸长且标称厚度不小于0.020 英寸),且其中五片需经过168h的中性盐雾测试。需要注意的是,所有试样均需放置24h后才能进行后续的测试(包括试样盐雾测试前的试片以及经过盐雾测试后的试样)。
02
不同阳极氧化类型关于膜重的区别

在测试前需将试片表面进行清洁,注意在清洁时不要破坏到试样表面的化学转化膜膜层;清洁完成后,需将试样按上图所示划分为10个区域。将试样放在接触电阻测试仪器的接触电极上(接触电极应为铜或镀银铜,表面粗糙度不超过使用000金相砂纸获得的粗糙度,电极应足够平坦,以便在没有试样的情况下施加负载时,通过接触面看不到光。上电极的面积应为1平方英寸,下电极的面积应更大),并对试样施加200psi±2psi的压力,然后对所测得的电阻值进行记录(试样划分的10个区域均需进行测试)。进行接触电阻测试时,Class 3涂层的电阻值为不大于每平方英寸5000μΩ,在168小时的中性盐雾暴露后,每平方英寸的电阻不大于10000μΩ(需要注意的是,MIL-DTL-81706B中是要求所有电阻读数的平均值不超过规定的最大值,且单个电阻读数不超过规定最大值 20%,但MIL-DTL-5541F中则未说明电阻要求是否为平均值,如客户要求参照MIL-DTL-5541F进行电阻测试,那为了稳妥起见,最好提前与客户确认好要求)。






